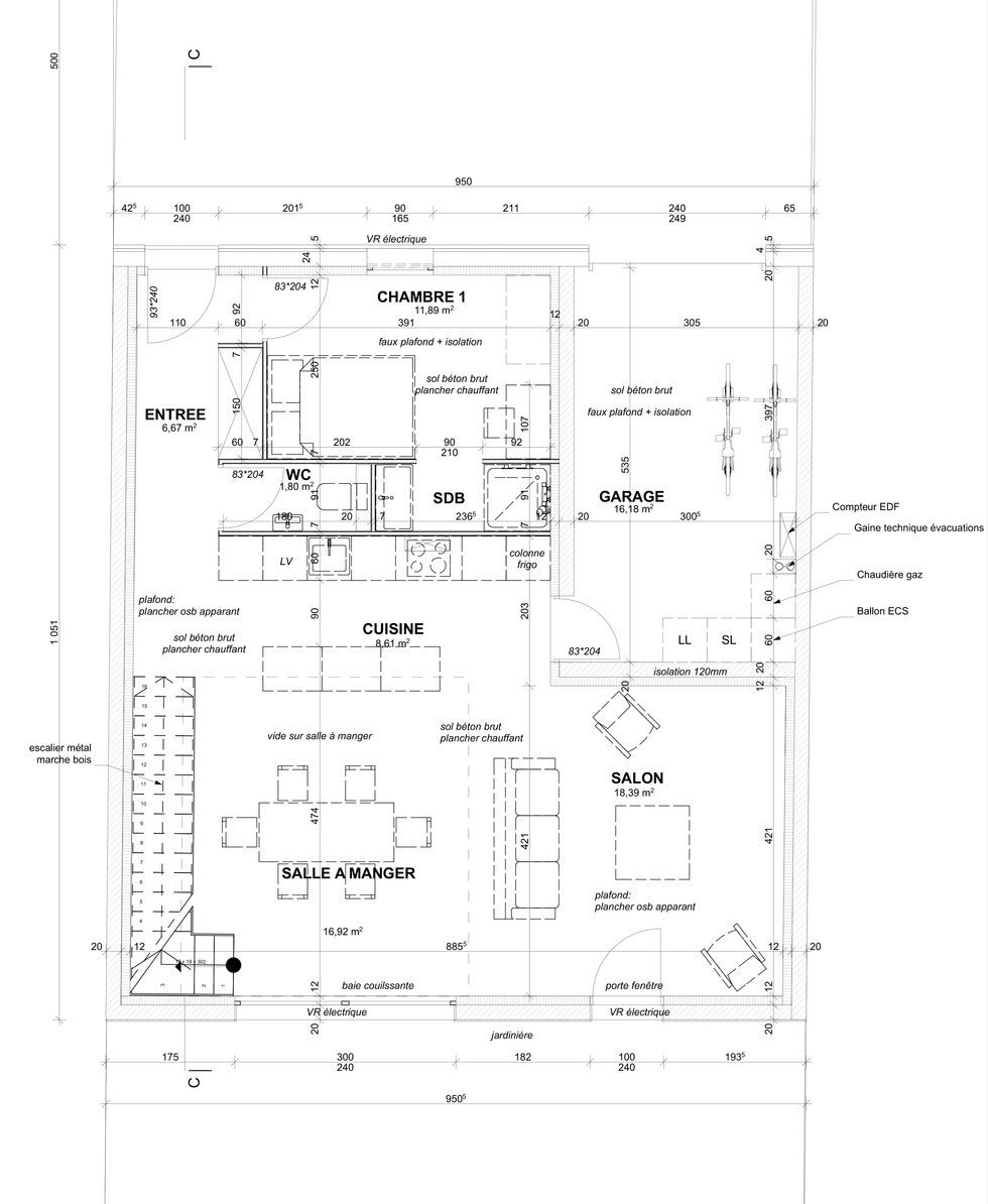
Les Plans de Notre Future Maison
- Florie Armitage

- 7 nov. 2018
- 1 min de lecture
Dernière mise à jour : 29 nov. 2018
Première étape: le permis de construire.

Après la signature du sous-seing nous commençons par déposer le dossier de permis de construire, c'est l'une des conditions suspensive pour l'achat du terrain.
“Il faut savoir concilier règlement d'urbanisme et choix constructifs.”
Quelques obligations sont à prendre en compte, un règlement de lotissement a été réalisé par la mairie et nous oblige à avoir:
- une façade sur rue de 6m de haut minimum
- un R+1
- un placage pierre sur la façade sur rue
- un recule de 5m par rapport à la rue
Notre permis est accepté le 4 avril 2018, maintenant il faut attendre le recours des tiers et signer l'acte définitif chez le notaire et les travaux pourront commencer!!




















Commentaires